
The Port of Ridgefield is redeveloping its former industrial waterfront along Lake River into a vibrant community gathering place that supports economic vitality and quality of life for everyone in Ridgefield.
The process to redevelop the Ridgefield Waterfront has been 30 years in the making, with the partnership of Ridgefield's citizens and businesses, local partners, and federal and state agencies. Below are some of the most recent resources to illustrate this journey and the path to a vibrant, mixed-use waterfront.

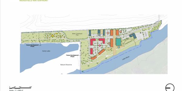
In November 2024, the Port of Ridgefield and Palindrome Properties Group, LLC signed an agreement to begin negotiations for the future development of the Ridgefield waterfront.
Since the 1990s, the Port has been working to transform 41 acres of former industrial land into a vibrant community space. More than $90 million has been invested to clean up contamination left behind by decades of use as a wood treatment plant.
In 2023, the Port developed—and the Commission approved—the Waterfront Business Plan, which outlines a shared vision for the area’s future. Based on market research and community input, the plan aligns with Palindrome’s proposal to bring a mix of parks, industrial and maker spaces, retail and office space, housing, lodging, and recreation to the waterfront.
At full build-out, the project is expected to support approximately 335 permanent, full-time jobs, helping replace those lost with the closure of Pacific Wood Treating. It also aims to provide a wide range of opportunities that support Ridgefield’s long-term, sustainable economic growth.
We’ve spent years listening to our community about what’s wanted and needed on the waterfront. In 2022, we conducted a robust engagement process that included a public survey and several events in and around Ridgefield.
You can view the engagement report here, and see how your feedback helped shape the 2023 Waterfront Business Plan.
Our outreach continues as we work with Palindrome to create the development plan in 2025 and 2026. In the short term, you’ll see Port and Palindrome representatives at local events on the waterfront and downtown, sharing information and continuing to learn about our community's interests for the waterfront.
You can also stay informed through this website and by attending our monthly public Commission meetings.
Please reach us at info@portridgefield.org if you cannot find an answer to your question.
Public port districts in Washington State like ours exist for the purpose of generating economic activity, also referred to as commerce, trade, or economic development. The Port of Ridgefield aims to promote economic prosperity for our region while enhancing the quality of life for our community. The port focuses on environmental stewardship, infrastructure projects that generate economic benefit and help reduce the tax burden for citizens, and community projects that support quality of life in Ridgefield and Southwest Washington.
Since its establishment by Ridgefield voters in 1940, the port has remained dedicated to its visionary goals of growing local businesses, creating quality jobs, and developing the area's rich landscape and waterfront. Today, the port offers high-quality facilities and prime property in this rapidly growing region and supports the enhancement of community benefits through the management and development of public access spaces. With a history of successfully tackling complex challenges, the port continues to plan for several development projects that will support the local economy and expand services and opportunities for Ridgefield residents.
Over the past decade, the City of Ridgefield has been consistently recognized as one of the fastest-growing communities in the state of Washington. With that growth comes tremendous economic opportunity. We embrace that opportunity while staying rooted in Ridgefield’s unique character, continuing to be good stewards of the environment, and delivering an unparalleled quality of life.
The Ridgefield waterfront has been a major employment center for North Clark County residents for over 120 years, supplying the community with jobs. The port’s waterfront development plans intend to continue this element through thoughtful land use and amenities that spur additional retail, operational and hospitality related employment opportunities.
The proposed land uses in the port’s Waterfront Business Plan are all consistent with existing Ridgefield zoning policy and shoreline master plan statutes, all of which support the overall development vision. The port and city spent years carefully crafting the city’s Waterfront Mixed Use zone and High Intensity Shoreline area specifically for the purpose of enabling a thriving mixed-use waterfront development. Our joint vision intends to encourage a variety of community uses (i.e., retail space, restaurants, shops, housing), while respecting our natural surroundings and continuing to provide the Ridgefield community with public access to their waterfront.
Today’s Ridgefield Waterfront was originally the site of most of the industrial activity in Ridgefield for over a century. When Port tenant Pacific Wood Treating shut down in 1993, we had to think hard about the future of the site, the investment required, and what the public would expect of us once it was complete. When the Port and our local, state and federal partners undertook the cleanup work, the basis was future environmental and economic health. It took over 20 years and over $90 million to transform the Ridgefield waterfront from a toxic industrial site to a place that can support jobs, commerce, and quality of life for our future—all with our community’s needs and interests at heart.
It was always the plan to rebuild the waterfront. The Port and City have been planning the future of the site since the early days of cleanup, and capital investment in the waterfront and connecting downtown has been a part of both agencies’ comprehensive plans since the 1990s. Our goal and purpose in rebuilding the waterfront is to deliver on that promise of environmental and economic health and bring economic opportunity back to the waterfront for the Ridgefield of today.
We recognize the importance and value of the existing community boat launch and plan to continue maintaining and improving this amenity. While there are no plans to enlarge or expand the launch, it will continue to be improved within its existing footprint. Additionally, we are planning the following improvements for all watercraft:
Recently we’ve added signage at the boat launch directing all non-motorized watercraft (i.e., kayaks, standup paddleboards) to exclusively use the separate kayak launch at Division Street. We’ve done this to improve safety and streamline the launch process for both groups of users.
The port plans to continue improving the kayak launching facilities in partnership with the City of Ridgefield as we plan our new community Waterfront Park. These improvements may include public restrooms, an ADA kayak launch, kayak storage lockers, picnic facilities, shoreline enhancements, and others.
We know that opportunities for increasing access to the waterfront are a high priority for the community and can be achieved through thoughtful planning that considers current and future land use and access needs. We intend to work closely with the City of Ridgefield throughout this process to coordinate transportation improvements and ensure that our downtown retains its appeal, and the benefits of the waterfront are available to everyone.
The Ridgefield National Wildlife Refuge is a major draw to Ridgefield and our waterfront. The waterfront business plan provides guidance to help us build on and strengthen our relationship with the Refuge. The City also has many environmental protections in place that preserve the Refuge’s ecological value and enhance conditions for wildlife.
We are exploring the following opportunities to continue protecting our shared environment while increasing visitor access:
We recognize that with any development comes the risk of impacts, including obstructing views. Our plans for rebuilding the Ridgefield Waterfront include steps to minimize or mitigate this impact where possible. This includes ensuring the marketability and developability of the waterfront with protections for view corridors and view sheds in place. These protections, adopted into our city code, were specifically created in partnership with the City of Ridgefield to balance the protection of neighboring property views with the feasibility of waterfront redevelopment.
We heard from our community that a core component of rebuilding the Ridgefield Waterfront needs to include improvements to public access. We are working with the City of Ridgefield to develop a design that improves waterfront access and adds amenities for locals and visitors alike.
Waterfront access improvements may include:
The Port of Ridgefield has spent decades addressing environmental impacts on the waterfront and managing risk to human health and the environment. Cleanup of the port and city-owned property was completed by 2015, in coordination with the Washington State Department of Ecology (Ecology). The cleanup was done with the expectation of redeveloping the Ridgefield waterfront to support economic benefit for the community. Cleanup included removal of contaminated materials and installation of soil caps in parts of the property to help manage risk into the future. The Port and Ecology have developed permanent environmental rules for the waterfront property that will help direct how the property can be developed while managing environmental risk.
Yes, the current concept includes housing. In most successful mixed-use waterfront developments around the Pacific Northwest, a residential piece is part of that mix. Residents can keep a waterfront active throughout the day, provide extra eyes on the waterfront for increased safety, and add more customers for restaurants and retailers on the waterfront and in the adjacent downtown. Ports don’t build housing, but a developer may lease land on the waterfront and build buildings with upper-story residential spaces.
Communities across the nation and state of Washington are grappling with housing needs; Ridgefield and Clark County are no exception. The housing market, timing of waterfront redevelopment relative to other housing in our area, and other conditions may influence whether housing is included in redevelopment, and if it is, what kind and amount of housing will be supported. The port will work with our community and potential developers to understand needs and continue to share information about the ongoing redevelopment of the Ridgefield Waterfront.
The port is leaving no stone unturned as it seeks funding to put the waterfront land back to productive use for our community. Funding to rebuild the Ridgefield Waterfront is likely to come from a mix of sources that could include tax revenues, grants, financing, and developer contributions. We will share more information as the process unfolds.
We use cookies to analyze website traffic and optimize your website experience. By accepting our use of cookies, your data will be aggregated with all other user data.